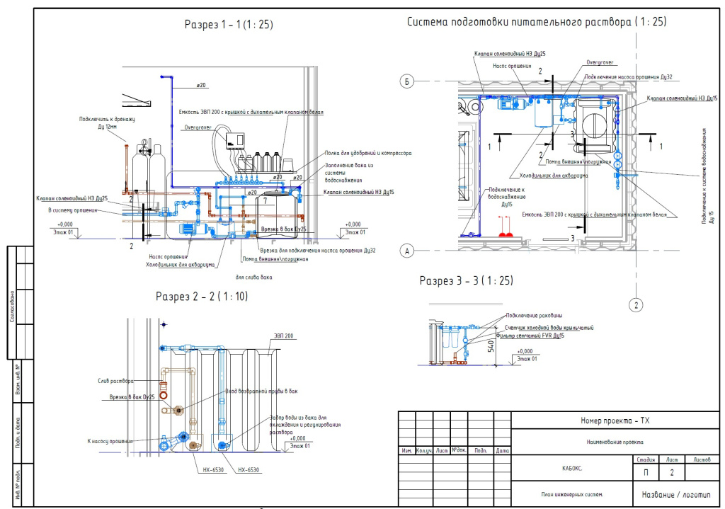
Контейнерная ферма COBOX по выращиванию лекарственных растений - полностью автоматизирована по технологии OverGrower


Для реализации проекта была создана Проектная Документация, с подробной проработкой Технологии и других разделов:


Контейнерная ферма COBOX по выращиванию лекарственных растений - полностью автоматизирована по технологии OverGrower


Для реализации проекта была создана Проектная Документация, с подробной проработкой Технологии и других разделов:

